Irodaszer webáruház Hobbi kellékek webáruház Jégkár és horpadás javítás fényezés nélkül
« új keresés

Keresés





- MFt
 

-

- db

- db
építés módja




















állapot


















fűtés típusa































Ingatlan hirdetések / Kiadó ingatlanok / Kiadó Raktár Budaörs

Kiadó Raktár Budaörs

Az ingatlan adatai



hirdetés azonosítója: 56490
jelleg: Kiadó
ingatlan típusa: Raktár
irányár: 1 358 900 Ft
megye: Pest még több Pest megyei hirdetés
település: Budaörs még több Budaörs
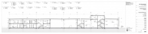
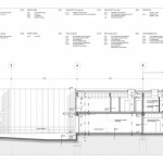
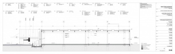
telek terület: 6000 m²
hasznos alapterület: 1020 m²
bővebb leírás: Budaörsön logisztikai szempontból kiváló helyszínen az M1 és M7 autópálya mellett Hegyeshalmi vasútvonal szomszédságában  portaszolgálatos raktárkomplexumban rugalmasan bérelhetők iroda és raktárhelyiségek. Az A kategóriás raktárak   egy része már megépült  illetve most épül.Alapterület: 1020m2 emeleten irodával bővíthető (230m2): összesen 1250m2 illetve egy alapterület: 1230m2 emeleten irodával bővíthető 420m2): összesen 1650m2  leköthető.(még változtatható a belső kiépítés bérlői igény szerint legkésőbb 2016 december 31.-ig) 

Bérleti díj: 
Raktár: 4,50 euró/m2/hó +áfa összegtől (bérlői igény és m2 függvénye) 
  Komplexumban található 24 órás portaszolgálat , karbantartó részleg, meleg konyhás büfé, épület menedzsment.a területen  irodabérletre is nyílik lehetőség :
 iroda: 6,5 euró/m2/hó + Áfa összegtől (bérlői kiépítési igény függvénye) 
Bérleti időtartam: min 3 év 
üzemeltetési díj: 450,- Ft/m2/hó + Áfa (nem tartalmazza a bérleményben mért elektromos áram, fűtés-hűtés, és víz fogyasztását, annak mérése külön al mérővel történik) 
Az épület fűtése hőszivattyús hűtő-fűtő rendszerrel történik ezért rendkívül kedvező az üzemeltetése.
További kérdés esetén állok szíves rendelkezésedre
 
helységek:

Fényképek

A hirdető adatai

kapcsolat: Flick Euridyke  
telefonszám: +36 30 202-5375  
e-mail cím: uh.enilno-t@oidutsnaltagniisroadub  
     
ingatlan iroda: Budaörsi Ingatlan Stúdió Az iroda további hirdetései
iroda címe: 2040 Budaörs, Budapesti út 110.  
telefonszám: +36 23 441-866  
fax:  
e-mail cím: uh.enilno-t@oidutsnaltagniisroadub  
weboldal: www.huingatlan.hu  

Amíg nem vette fel a kapcsolatot személyesen az eladóval addig ne utaljon előleget!