Irodaszer webáruház Hobbi kellékek webáruház Jégkár és horpadás javítás fényezés nélkül
« új keresés

Keresés





- MFt
 

-

- db

- db
építés módja




















állapot


















fűtés típusa































Ingatlan hirdetések / Eladó ingatlanok / Eladó Ikerház Vácrátót

Eladó Ikerház Vácrátót

Az ingatlan adatai



hirdetés azonosítója: 131589
jelleg: Eladó
ingatlan típusa: Ikerház
irányár: 85 000 000 Ft
megye: Pest még több Pest megyei hirdetés
település: Vácrátót még több Vácrátót
telek terület: 250 m²
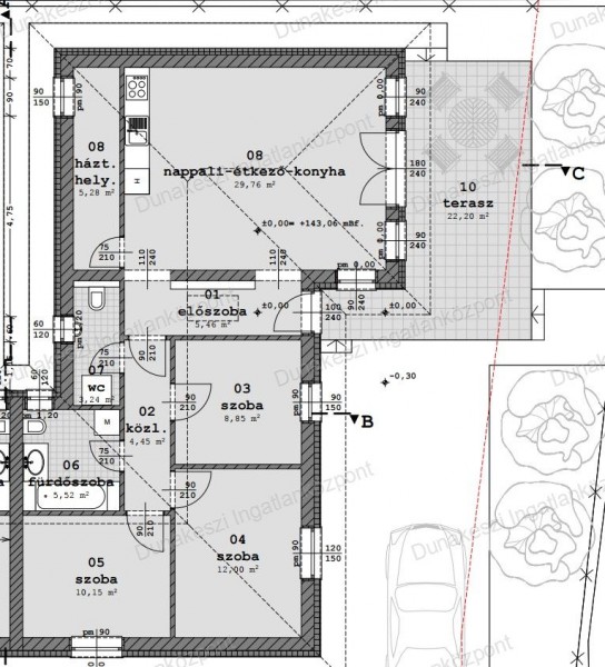
hasznos alapterület: 85 m²
szobák száma: 4
bővebb leírás: Vácrátóton 85 nm-es ÚJ ÉPÍTÉSŰ ikerház eladó. 
A földszintes házban amerikai konyhás nappali+3 hálószoba, fürdőszoba, külön mellékhelyiség kerül kialakításra. A nappaliból egy 20 nm-es terasz nyílik.

Parkolás autóbeállón megoldott.

A fűtésről hőszivattyú gondoskodik padlófűtéssel. Nyílászárók műanyag, 3 rétegű hőszigetelt üvegezésűek. Külső szigetelés 15 cm-es.
Szaniterek, burkolatok, belső ajtók igény szerint választhatók.

Referenciákkal rendelkező, megbízható kivitelezőtől.

Megtekinthető telefonos időpont-egyeztetés alapján: Czirják Mihály 20/220-9995
helységek:

Fényképek

A hirdető adatai

kapcsolat: Czirják Mihály  
telefonszám: +36 20 220-9995  
e-mail cím: uh.zahizsekanud@ylahimkajrizc  
     
ingatlan iroda: Dunakeszi Ingatlanközpont Az iroda további hirdetései
iroda címe: 2120 Dunakeszi, Fő út 69.  
telefonszám: +36 20 220-9995  
fax:  
e-mail cím: uh.zahizsekanud@ofni  
weboldal: www.dunakeszihaz.hu  

Amíg nem vette fel a kapcsolatot személyesen az eladóval addig ne utaljon előleget!