| hirdetés azonosítója: | 130490 | |
| jelleg: | Eladó | |
| ingatlan típusa: | Téglalakás | |
| irányár: | 64 975 000 Ft | |
| megye: | Somogy | még több Somogy megyei hirdetés |
| település: | Balatonlelle | még több Balatonlelle |
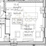
| hasznos alapterület: | 57 m² | |
| áramellátás: | Bevezetve (230 Volt) | |
| vízellátás: | Van, saját vízórával | |
| csatornázottség: | Közműhálózatba bekötve | |
| gázellátás: | Nincs a közelben | |
| építés módja: | Tégla | |
| komfort fokozat: | Összkomfort | |
| kilátás: | Kertre néző | |
| fűtés típusa: | Hőszivattyú | |
| építés éve: | 2025 | |
| emelet: | 2 | |
| állapot: | Új építésű | |
| külső állapot: | Hőszigetelt | |
| szobák száma: | 2 | |
| parkolási lehetőség: | Udvarban | |
| klíma: | Központi klíma | |
| bővebb leírás: | Akciós, előértékesítési árakon!! Vízparti utcában, a Balatontól mindössze 100 méterre! A CITY CARTEL INGATLANIRODA eladásra kínál Balatonlellén, pár lépésre a szabadstrandtól, új építésű, 22 lakásos, 4 szintes, liftes társasházban található, tégla építésű lakásokat. A lakások 1+1 szobás beosztással, erkély és teraszkapcsolattal kerülnek kialakításra. Kulcsrakészen, várhatóan, 2026. év végén kerülnek átadásra. Hőszivattyús hűtés-fűtés, elektromos redőnyök, ütemezett fizetés. A lakásokhoz, gépkocsibeálló 3 millió forintért kötelezően, saját tárolók 2 millió foritért opcionálisan megvásárolhatóak. További részletes információért forduljon hozzám bizalommal, a hét bármely napján! Irodáink: 8600 Siófok, Fő tér 6. (Sió Pláza -1. szint) 8640 Fonyód, Ady Endre u. 5. (Balaton Áruház földszint) 8638 Balatonlelle, Rákóczi út 276. Kövess minket Facebook-on is: @citycartelbalaton! |
|
| helységek: | ||
| kapcsolat: | Gál Balázs | |
| telefonszám: | +36 70 866-8876 | |
| e-mail cím: | uh.letracytic@szalab.lag | |
| ingatlan iroda: | City Cartel, Siófok | Az iroda további hirdetései |
| iroda címe: | 8600 Siófok, Fő tér 6. (Sió Pláza -1 szint) | |
| telefonszám: | +36 70 778-2119 | |
| fax: | ||
| e-mail cím: | uh.letracytic@notalab | |
| weboldal: | siofok.citycartel.hu |