Irodaszer webáruház Hobbi kellékek webáruház Jégkár és horpadás javítás fényezés nélkül
« új keresés

Keresés





- MFt
 

-

- db

- db
építés módja




















állapot


















fűtés típusa































Ingatlan hirdetések / Eladó ingatlanok / Eladó Családi ház Gencsapáti

Nappali + 3 szobás, 109 n m-es családi ház eladó Szombathely szomszédságában.

Az ingatlan adatai



hirdetés azonosítója: 125267
jelleg: Eladó
ingatlan típusa: Családi ház
irányár: 98 760 000 Ft
megye: Vas még több Vas megyei hirdetés
település: Gencsapáti még több Gencsapáti
telek terület: 438 m²
hasznos alapterület: 109 m²
áramellátás: Bevezetve (230 Volt)
vízellátás: Van
csatornázottség: Közműhálózatba bekötve
gázellátás: Gázvezeték a telek előtt
építés módja: Könnyűszerkezetes
komfort fokozat: Összkomfort
kilátás: Kertre néző
fűtés típusa: Hőszivattyú
építés éve: 2023
állapot: Új építésű
külső állapot: Hőszigetelt
szobák száma: 2
félszobák száma: 1
bővebb leírás: C I T Y C A R T E L

INTERNATIONAL LUXURY REAL ESTATE AGENCY

bemutatja:

 

 

A mai kornak megfelelő tervezéssel készült, könnyűszerkezetes családi házat kínálunk vételre. Az ingatlan megfelel a legnagyobb energetikai követelményeknek, és besorolása lehetővé teszi a kamattámogatott hitel, CSOK és egyéb kedvező finanszírozás igénybevételével történő megépítését. Az épület tervezésénél fő szempont volt a nagyobb családok számára is ideális helyiségkiosztás. A nagy nyílászárók jól elválasztják a teret és kimagasló kitekintést biztosítanak a környezetünkre. Az épület adottságai alapján egy modern épületet kapunk, mely minden előnyét kihasználva a három szobájával kiválóan alkalmas a családok elképzeléseinek és elegendő életteret biztosít mindenki számára.

A telekméret 478 nm.

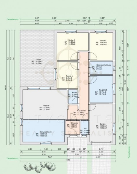
A lakóingatlan az alábbi helyiségekkel rendelkezik:

Szoba 13,25 m2

Szoba 10,08 m2

Szoba 9,65 m2

WC 1,79 m2

Fürdő 10,76 m2

Nappali 22,54 m2

Konyha / étkező 15,98 m2

Kamra 2,35 m2

Háztartási helyiség 5,14 m2

Közlekedő 13,79 m2

Előszoba 3,36 m2

ÖSSZESEN NETTÓ 109,41 m2

Fűtése hőszivattyús rendszerrel.

Összesen (telek + ház) bruttó vételár: 98 760 000 Ft.

 

ÜDVÖZLETTEL:

DR VINCELLÉR ZSUZSA

ÜGYVEZETŐ, CEO, LUXURY SPECIALIST

+3630-815-2510

V.ZSUZSA@CITYCARTEL.HU

 

CITY CARTEL BUDA KFT.

CITY CARTEL FRANCHISE HUNGARY KFT.
1118 BUDAPEST, HEGYALJA ÚT 54.

1026 BUDAPEST, SZILÁGYI ERZSÉBET FASOR 121.

BUDAGYÖNGYE BEVÁSÁRLÓKÖZPONT

WWW.CITYCARTEL.HU
helységek:

Fényképek

A hirdető adatai

kapcsolat: Dr. Vincellér Zsuzsa  
telefonszám: +36 30 815-2510  
e-mail cím: uh.letracytic@aszusz.v  
     
ingatlan iroda: CITY CARTEL BUDAPEST ÉS AGGLOMERÁCIÓ Az iroda további hirdetései
iroda címe: 1118 Budapest, Hegyalja út 54.  
telefonszám: +36 13 651-450  
fax:  
e-mail cím: uh.letracytic@adub  
weboldal: www.citycartel.hu  

Amíg nem vette fel a kapcsolatot személyesen az eladóval addig ne utaljon előleget!