Irodaszer webáruház Hobbi kellékek webáruház Jégkár és horpadás javítás fényezés nélkül
« új keresés

Keresés





- MFt
 

-

- db

- db
építés módja




















állapot


















fűtés típusa































Ingatlan hirdetések / Eladó ingatlanok / Eladó Családi ház Siófok

Eladó új építésű családi ház Siófok, Foki-hegyen

Az ingatlan adatai



hirdetés azonosítója: 117441
jelleg: Eladó
ingatlan típusa: Családi ház
irányár: 178 999 000 Ft
megye: Somogy még több Somogy megyei hirdetés
település: Siófok még több Siófok
telek terület: 600 m²
hasznos alapterület: 150 m²
áramellátás: Bevezetve (230 Volt)
vízellátás: Van, saját vízórával
csatornázottség: Közműhálózatba bekötve
gázellátás: Vezetékes gáz
építés módja: Tégla
komfort fokozat: Dupla komfort
kilátás: Udvari
fűtés típusa: Hőszivattyú
építés éve: 2021
állapot: Kiváló
külső állapot: Hőszigetelt
szobák száma: 4
parkolási lehetőség: Garázsban
klíma: Saját split klíma
bővebb leírás: ÁTADVA, Költözhető!

 

A City Cartel Ingatlaniroda eladásra kínál Siófok Foki-hegyi, dinamikusan fejlődő városrészén, egy nettó 140 nm2 -es új építésű, egyszintes, mediterrán stílusú családi házat, 21 nm es fedett terasszal, saját parkosított, öntöző rendszerrel ellátott  kerthasználattal, kulcsrakész állapotban.

 

A város egyik legjobb és egyben legmegbízhatóbb kivitelezőjétől vásárolhat ingatlant, aki a szomszédos utcákban már rendelkezik számos megtekinthető refernciamunkával.

 

A családi ház kellemes, családias, új építésű házak környezetében található, közelben iskola, óvoda, gyógyszertár, orvosi rendelők, kórház, illetve bevásárlási lehetőség is könnyen elérhető.

 

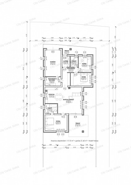
Nappali-konyha-étkező, 3 hálószoba /18 nm, 14 nm, 11 nm-es/, 2 fürdőszoba, 22 nm-es garázs, háztartási helyiség és előszoba található az ingatlanban.

 

A házat 15 cm-es grafit szigetelés fedi, 3 rétegű üveg nyílászárók, riasztó és klíma is található a betonfödémes ingatlanban.

 

A ház saját mérőórákkal rendelkezik. Elektromos redőny és szúnyogháló kerül beépítésre a nyílászárókra. Hűtő-fűtő klíma is található az ingatlanban.

 

Műszaki tartalom:

- Terrán Danubia Antracit tetőcserép, antracit csatornarendszerrel
- Falazat Leier 30-as kerámia falazóelem, válaszfalak Leier 10-es falazóelemekből
- Térkövezett udvari kocsibeálló
- Elektromos távirányítású úszókapu és garázskapu
- Teljeskörűen kiépített napelemrendszer
- Kondenzációs kombi gázkazán
- 6 légkamrás, hőhídmentes nyílászárók, 3 rétegű üveggel, bukó-nyíló kivitelben
- Geberit beépített tartályos wc
- Nappaliban Schiedel kémény, mellyel akár kandalló, vagy cserépkályha is működtethető
- Fűtő-hűtő légkondicionáló készülék
- Kiépített riasztórendszer ablak; ajtónyitásra + mozgásérzékelők + külső sziréna

 

Irodáink:

8600 Siófok, Fő tér 6. (Sió Pláza -1. szint)

8640 Fonyód, Ady Endre u. 5. (Balaton Áruház földszint)

8638 Balatonlelle, Rákóczi út 276. 

 

Kövess minket Facebook-on is: @citycartelbalaton!

 

Ezúton tájékoztatjuk, hogy Ön, mint érdeklődő, a pénzmosás, és terrorizmus elleni adatvédelem (GDPR) értelmében a hirdetésben megjelölt telefonszám felhívásával hozzájárul személyes adatai – így különösen neve és telefonszáma -, a hirdetést feladó City Cartel Ingatlaniroda hálózat általi - biztonságos és körültekintő - kezeléséhez, nyilvántartásához. 
Az alábbi linken megismerheti az adatkezelési tájékoztatónkat:

 
https://www.citycartel.hu/adatkezeles/
helységek:

Fényképek

A hirdető adatai

kapcsolat: Takács Zsolt  
telefonszám: +36 70 778-2122  
e-mail cím: uh.letracytic@tlosz.scakat  
     
ingatlan iroda: City Cartel, Siófok Az iroda további hirdetései
iroda címe: 8600 Siófok, Fő tér 6. (Sió Pláza -1 szint)  
telefonszám: +36 70 778-2119  
fax:  
e-mail cím: uh.letracytic@notalab  
weboldal: siofok.citycartel.hu  

Amíg nem vette fel a kapcsolatot személyesen az eladóval addig ne utaljon előleget!